Affordable Home For Sale

5 Halsey Road New Britain

Download Application | Property Details | Price and Eligibility | Qualification Details | Questions


Renovated Affordable Home For Sale in New Britain, CT.

NHS New Britain is offering a recently renovated single-family home available exclusively to income-qualified, first-time homebuyers.

  • Available for occupancy: May 2026

  • Open House: Late April – Early May 2026 (for qualified applicants)

  • Application Deadline: May 22, 2026*

  • Buyer Selection: Random lottery from qualified applicants (May 29, 2026*)

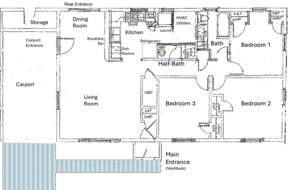
Property Details

Home Details
3 Bedrooms | 1.5 Bathrooms | Single-Family Home

  • Approx. 1,196 sq. ft. on 0.17 acres

  • One-car carport with additional storage

  • Backyard with patio and storage shed

Systems & Efficiency

  • Natural gas forced air heating

  • Tankless, on-demand hot water

  • Central air conditioning (electric)

  • Energy-efficient windows and exterior doors

Interior Features

  • Vinyl plank flooring throughout (tile in bathrooms)

  • Granite countertops with breakfast bar

  • Fully equipped kitchen with Energy Star appliances:

    • Refrigerator, stove, microwave, dishwasher

    • Washer & dryer included

Location Highlights

  • Near Smith Elementary School & New Britain High School

  • Easy access to Downtown New Britain

  • Convenient to Routes 9, 5, and 84

Price & Eligibility

Purchase Price $265,000 (Below Market Value)

Who Qualifies?

  • This home is available only to buyers who:

    • Are first-time homebuyers

    • Meet income and mortgage qualification requirements

    • Earn ≤ 80% of Area Median Income (AMI) for New Britain

    • Example: A household of 4 must earn $101,280 or less annually to qualify.

Qualifications

  • To qualify, you must have an income, credit rating, down payment, and closing costs that qualify you to obtain a mortgage for the $265,000 purchase price. Generally, this means you will need an income of around $74,000 or more per year, as well as sufficient cash and/or assistance for a down payment and closing costs at the time of closing. Factors such as your credit rating, interest rates, and down payment will affect these estimates.

  • Your household income must also be less than or equal to 80% of Area Median Income for the Town of New Britain adjusted for your household size. For example, if there are 4 people of any age or relationship who will live in the home, including children, the maximum household income you can make to qualify is $101,280 per year. Use this table to determine the upper Income Limit to qualify.

  • The home being offered is a “Shared Equity” mode home. NHS New Britain will own the land under the home and you will purchase only the building on the property. You will have a Ground Lease with NHS New Britain that gives you the needed rights to use the land and enjoy the home. The Lease will also provide restrictions on the home, primarily designed to keep it affordable in perpetuity. These restrictions include, (i) you must agree to live in the home at least 8 months a year, (ii) when you decide to sell the home, you will need NHS New Britain’s approval of the sale price and a review of the sale by the CT Department of Housing designed to ensure the resale price of the home keeps the home affordable for households at 80% AMI. We will review these restrictions with you in detail if you apply and qualify.

  • You must complete an application in full and submit to NHS New Britain for processing which will include a verification of your income, a credit and a background check. As part of the application we require that you provide a mortgage qualification letter from a mortgage lender indicating that their review of your finances indicates they would be willing to lend you the amount required. Applications will be accepted until May 22nd, 2026*. Application and all required supporting materials must have been submitted prior to this date.

A Lottery will be held with all qualified applicants to determine which qualified candidate gets the opportunity to purchase the home. At this time, the Lottery is planned for May 29, 2026.*

*Dates are subject to change at the sole discretion of NHS New Britain for any reason.

Questions? Contact us!

If you have questions about how to submit your application, please contact Zuhey Rivera

Phone: (860) 224–2433 ext. 116
Email: zrivera@nhsnb.org

Zuhey Rivera - Housing Counselor